ΠΛΗΡΟΦΟΡΙΕΣ ΕΡΓΟΥ:
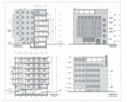
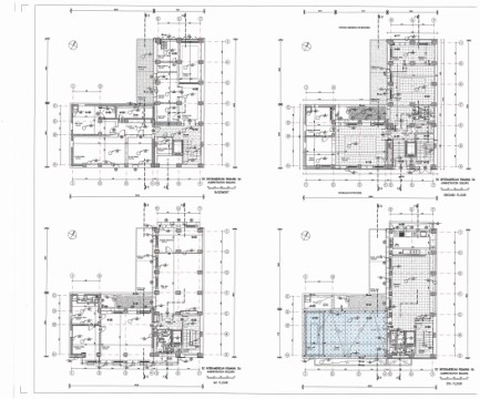
Τίτλος Έργου: Προμελέτη, Οριστική Μελέτη και Μελέτη Εφαρμογής του κτιρίου γραφείων της ασφαλιστικής εταιρείας INTERAMERICAN S.A. στο Βουκουρέστι Ρουμανίας
Εργοδότης: INTERAMERICAN ROUMANIA S.A.
Μελετητής: Στρογγυλός Θεμιστοκλής
Θέση Υπευθυνότητας: Υπεύθυνος Μελέτης
Εκπόνηση Μελέτης: 1998
ΣΧΕΤΙΚΑ ΕΡΓΑ: