Content on this page requires a newer version of Adobe Flash Player.

Get Adobe Flash player

  • ΑΡΧΙΚΗ
  • ΕΤΑΙΡΙΚΟ ΠΡΟΦΙΛ
  • ΚΑΤΑΣΚΕΥΕΣ
    • ΚΤΙΡΙΑΚΑ EΡΓΑ
      • Κτίριο Γραφείων ΕΛ.ΠΕ. Α.Ε.
      • Κτίριο Υπεραγοράς Carrefour S.A. στον Αγ. Ιωάννη Ρέντη
      • Καταφύγιο Τουριστικών Σκαφών στις Μπενίτσες Κέρκυρας
      • Ανακαίνιση και ενεργειακή αναβάθμιση κτιρίου Πρατηρίου Καυσίμων στην Κέρκυρα
      • Αναβάθμιση Όψεως Νεοκλασικού Κτιρίου στο Κολωνάκι Αθηνών
      • Αναστήλωση και Ανακαίνιση Διατηρητέου Κτιρίου στο Ιστορικό Κέντρο της Κέρκυρας
      • Στατική Ενίσχυση Φέροντος Οργανισμού της Κεντρικής Βιβλιοθήκης του Ιονίου Πανεπιστημίου Κέρκυρας
    • ΠΕΡΙΒΑΛΛΟΝΤΙΚΑ ΕΡΓΑ
      • Εγκαταστάσεις Καθαρισμού Λυμάτων Δήμου Παξών
      • Εγκατάσταση Επεξεργασίας Λυμάτων Δήμου Θιναλίων
    • ΕΡΓΑ ΥΠΟΔΟΜΗΣ
      • Εγνατία Οδός Α.Ε. - Τμήμα Σήραγγας Δρίσκου (2.3)
    • ΕΙΔΙΚΑ ΕΡΓΑ
      • Στερέωση και Αποκατάσταση αμυντικού τείχους στο Παλαιό Φρούριο της Κέρκυρας
      • Ενίσχυση Φέροντος Οργανισμού κτιρίου Πρατηρίου Καυσίμων στην Κέρκυρα
      • Στατική Ενίσχυση Ιστορικού Κτιρίου Ιεράς Μητρόπολης Κέρκυρας, Παξών & Διαπόντιων Νήσων στην Παλαιά Πόλη της Κέρκυρας
      • Στατική Ενίσχυση Φέροντος Οργανισμού Κεντρικής Βιβλιοθήκης Ιονίου Πανεπιστημίου Κέρκυρας
      • Αναβάθμιση Η/Μ Δικτύου στην κλειστή Φυλακή Κέρκυρας
      • Ενίσχυση Φέροντος Οργανισμού Ξενοδοχειακού Συγκροτήματος "SAN STEFANO", 20.000τ.μ., στις Μπενίτσες Κέρκυρας
      • Ειδική Θεμελίωση και Διαφραγματικός Τοίχος Αντιστήριξης Νέου Κτιρίου Κατοικιών, 9.000 τ.μ., στο Μαντούκι Κέρκυρας
      • Αναστήλωση - Ενίσχυση Φέροντος Οργανισμού Διατηρητέου Κτιρίου στην Παλαιά Πόλη της Κέρκυρας
      • Ανακαίνιση Όψεως Διατηρητέου Νεοκλασικού Κτιρίου στο Κολωνάκι Αθηνών
  • ΜΕΛΕΤΕΣ
    • ΔΗΜΟΣΙΑ ΕΡΓΑ
      • Μελέτη Αναμόρφωσης τμημάτων ισογείου και ημιορόφου του Γενικού Νοσοκομείου Αθηνών "ΛΑΪΚΟ" (Οδός Σεβαστουπόλεως)
      • Μελέτη Δημοπράτησης Νομαρχιακού Γενικού Νοσοκομείου Αγρινίου, 35.860 τ.μ., 274 κλινών
      • Οριστική Μελέτη και Μελέτη Εφραγμογής Νομαρχιακού Γενικού Νοσοκομείου Χίου "Σκυλίτσειο", 160 κλινών
      • Οριστική Μελέτη και Μελέτη Εφαρμογής Νομαρχιακού Γενικού Νοσοκομείου Κέρκυρας, 32.400 τ.μ., 301 κλινών
      • Οριστική Μελέτη και Μελέτη Εφαρμογής Νομαρχιακού Γενικού Νοσοκομείου Κατερίνης, 31.600 τ.μ., 217 κλινών
      • Αναπλάσεις Πλατειών και Διαμορφώσεις Πάρκων στον Δήμο Νέας Ερυθραίας Αττικής, 1999
      • Μελετη Δημοπράτησης του Περιφερειακού Γενικού Νοσοκομείου Χανίων, 480 κλινών
    • ΙΔΙΩΤΙΚΑ ΕΡΓΑ
      • Νέα διπλή διώροφη Πολυτελής Κατοικία στην Ιπποκράτειο Πολιτεία Αφιδνών Αττικής, 2000
      • Πολυτελής Κατοικία στην Κηφισιά Αττικής, 2000
      • Αρχιτεκτονική Μελέτη Προσθήκης Ορόφου Πολυτελούς Κατοικίας στον Διόνυσο Αττικής και Στατικός Επανέλεγχος, 2000
      • Νέες χερσαίες εγκαταστάσεις Ιχθυογεννητικού Σταθμού στον Κολυμπενό της Νότιας Ρόδου, 2000
      • Νέα Διώροφη Γεωργική Αποθήκη στο Παρθένι της βόρειας Λέρου, 2000
      • Κτίριο Γραφείων INTERAMERICAN S.A., Βουκουρέστι Ρουμανίας, 1830 τ.μ., 1998
    • ΕΙΔΙΚΕΣ ΑΡΧΙΤΕΚΤΟΝΙΚΕΣ ΜΕΛΕΤΕΣ
      • Μελέτη Συστήματος Κλειδιών Master Key Plan
      • Μελέτη Ενεργειακής και Παθητικής Πυροπροστασίας
      • Μελέτη Θερμομόνωσης
      • Μελέτη Αερισμού και Σκίασης
      • Μελέτη Εσωτερικής και Εξωτερικής Σήμανσης
      • Μελέτη Λειτουργικών Διαγραμμάτων
      • Χρωματική Μελέτη
      • Αρχιτεκτονική Μελέτη Εφαρμογής
    • ΕΞΕΙΔΙΚΕΥΜΕΝΕΣ ΜΕΛΕΤΕΣ ΣΤΑΤΙΚΗΣ ΕΝΙΣΧΥΣΗΣ ΚΤΙΡΙΩΝ (ΔΙΑΤΗΡΗΤΕΩΝ ΚΑΙ ΝΕΩΝ)
      • Μη καταστροφικός έλεγχος Αντοχής Σκυροδέματος
      • Ακτινογράφηση - Μαγνητογράφηση Σιδηρού Οπλισμού που βρίσκεται εντός του σκυροδέματος
      • Έλεγχος Ενανθράκωσης - Ασβεστοποίησης του Σκυροδέματος
      • Αξιολόγηση αποτελεσμάτων ελέγχων Οπλισμένου Σκυροδέματος
      • Στατική Μελέτη Ενίσχυσης Υφιστάμενου Φέροντος Οργανισμού από Υαλο-Ανθρακοϋφάσματα, Ελάσματα, Ειδκά Ενέματα και Ρητίνες
  • ΕΠΙΚΟΙΝΩΝΙΑ

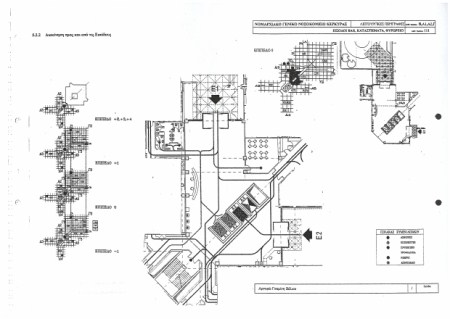
ΠΛΗΡΟΦΟΡΙΕΣ ΕΡΓΟΥ:

Είδος Μελέτης: Μελέτη λειτουργικών διαγραμμάτων Ν.Γ. Νοσοκομείων Κέρκυρας και Κατερίνης
Μελετητής: Αργυρώ Γκαμίνη Βέλιου, Θοδωρής Βέλιος και Συνεργάτες Αρχιτέκτονες Μηχανικοί Ε.Π.Ε.
Εκπόνηση Μελετών: 1996 - 1998

ΣΧΕΤΙΚΑ ΕΡΓΑ:

  • Μελέτη Συστήματος Κλειδιών Master Key Plan
  • Μελέτη Ενεργειακής και Παθητικής Πυροπροστασίας
  • Μελέτη Θερμομόνωσης
  • Μελέτη Αερισμού και Σκίασης
  • Μελέτη Εσωτερικής και Εξωτερικής Σήμανσης
  • Μελέτη Λειτουργικών Διαγραμμάτων
  • Χρωματική Μελέτη
  • Αρχιτεκτονική Μελέτη Εφαρμογής
 
ΕΛΛΗΝΙΚΑ - ENGLISH    Θοδωρής Βέλιος και Συνεργάτες Μηχανικοί - All rights reserved. © 2025.