Content on this page requires a newer version of Adobe Flash Player.

Get Adobe Flash player

  • HOME PAGE
  • COMPANY PROFILE
  • CONSTRUCTIONS
    • BUILDING PROJECTS
      • New Administration Office of the Greek Refinery in Aspropyrgos, Attica, Greece
      • Construction of a new Building for CARREFOUR supermarket
      • New Shelter construction for touristic boats in the land area of Benitses in Corfu, Greece
      • Renovation of the Fuel Station Building in Alykes of Corfu Island in Greece
      • Consultancy, Construction and Rehabilitation of the facades of the Historic Listed Building in Kolonaki of Athens, Greece
      • Renovation-Rehabilitation of a five storied Historic Listed Building in the Old Town of Corfu in Greece
      • Renovation of the existing Central Library Building of the Ionian University in Corfu Island in Greece
    • ENVIRONMENTAL PROJECTS
      • New Sewage Treatment Plant in municipality of Paxoi Islans in Greece
      • New Sewage Treatment Plant in municipality of Thinalia in Corfu Island in Greece
    • INFRASTRUCTURE PROJECTS
      • Egnatia Odos Highway – Tunnel of Driskos (section 2.3)
    • SPECIFIC PROJECTS
      • Structural reinforcement and rehabilitation of damaged parts in the old retaining wall of Kavosidero in the Old Fortress of Corfu Town
      • Structural reinforcement of the Fuel Station Building in Alykes of Corfu Island in Greece
      • Structural reinforcement of the historic building of the Holy Metropolis of Kerkyra, Paxoi and Diapontioi Nisoi in Greece
      • Structural reinforcement of the existing Central Library Building of the Ionian University in Corfu Island in Greece
      • General renovation and improvement of the external thermal piping and plumbing system, new boiler room and drainage system of the Penitentiary Facility in Corfu Island in Greece
      • Reconstruction of the 7 star Hotel Complex San Stefano, in Benitses-Corfu in Greece
      • New residential and shopping building in Mantouki of Corfu Island in Greece
      • Renovation-Rehabilitation of a five storied Historic Listed Building in the Old Town of Corfu in Greece
      • Consultancy, Construction and Rehabilitation of the facades of the Historic Listed Building in Kolonaki of Athens, Greece
  • STUDIES
    • PUBLIC PROJECTS
      • Design for renovating basement and mezzanine of the General Hospital of Athens "Laiko" in Sevastoupoleos str.
      • Tender Consultancy for the new General Regional Hospital of Agrinio in Greece, 35.860 sq.m., 274 beds
      • Preliminary-Master Plan Study for the estimation of the Necessities and Proposal Submission for the existing Regional General Hospital of Chios Island "Skylitsion" in Greece, 160 beds
      • Design and Planning Application Study for the new General Regional Hospital of Corfu Island in Greece, 32.400 sq.m., 301 beds
      • Design and Planning Application Study for the new General Regional Hospital of Katerini in Greece, 31.600 sq.m., 217 beds
      • Design and Supervision of squares and paths landscaping in the municipality of New Erythrea in Athens, 1999
      • Tender-Planning Study of the new Regional General Hospital of Chania in Greece, 480 beds
    • PRIVATE PROJECTS
      • Consultancy and Construction of a new double two storied luxury building 400 sq. m. with basement in Ippokratio Politia-Afidnes Attica in Greece, 2000
      • Extension (180 sq.m.) of a 400 sq.m. existing luxury house in Kifisia-Attica in Greece, 2000
      • One storey additional (152 sq.m., after the required statical analysis) upper structure in an existing luxury house (400 sq.m.) in Dionysos-Attica in Greece, 2000
      • Fish Hatchery Plant Planning in land area of Kolymbenos in Kattavia of Southern Rhodes Municipality in Greece, 2000
      • 2 storeys Agricultural Warehouse in Partheni of Leros Island in Greece, 2000
      • New Office Building of INTERAMERICAN S.A. Insurance Company in Bucharest in Romania, 1830 sq.m., 1998
    • SPECIFIC ARCHITECTURAL STUDIES
      • Master Key Plan Study
      • Active and Passive Fire Study
      • Thermal Insulation Study
      • Aeration and Shading Study
      • Internal and External Label Study
      • Landscape Design Drawings Study
      • Internal Coloring Study
      • Detailed Application Drawings Study
    • STRUCTURAL REINFORCEMENT SPECIFIC STUDIES (HISTORIC LISTED & NEW BUILDINGS)
      • Non Destructive testing of Concrete's Strength
      • Radiography - Magnetography of the steel reinforcement integrated in reinforced concrete structural elements
      • Calcification and Carbonification measurement
      • Results Evaluation of the tests on reinforced concrete structural elements
      • Studies of Structural Reinforcement using Fiber Reinforced Polymers, grout injections and epoxy resins
  • CONTACT

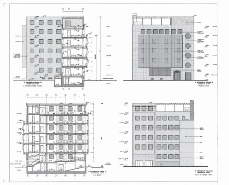
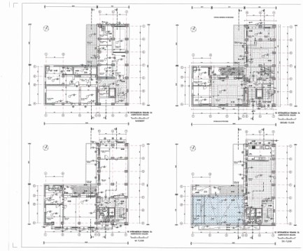
PROJECT INFORMATION:

Project Name: New Office Building of INTERAMERICAN S.A. Insurance Company in Bucharest in Romania
Client: INTERAMERICAN ROUMANIA S.A.
Consultancy Contractor: Stroggylos Themistoklis
Position: Consultant Manager
Consultancy Development: 1998

RELATED PROJECTS:

  • Consultancy and Construction of a new double two storied luxury building 400 sq. m. with basement in Ippokratio Politia-Afidnes Attica in Greece, 2000
  • Extension (180 sq.m.) of a 400 sq.m. existing luxury house in Kifisia-Attica in Greece, 2000
  • One storey additional (152 sq.m., after the required statical analysis) upper structure in an existing luxury house (400 sq.m.) in Dionysos-Attica in Greece, 2000
  • Fish Hatchery Plant Planning in land area of Kolymbenos in Kattavia of Southern Rhodes Municipality in Greece, 2000
  • 2 storeys Agricultural Warehouse in Partheni of Leros Island in Greece, 2000
  • New Office Building of INTERAMERICAN S.A. Insurance Company in Bucharest in Romania, 1830 sq.m., 1998
 
ΕΛΛΗΝΙΚΑ - ENGLISH    Theo Velios and Associates - All rights reserved. © 2025.